【仲介手数料無料】リノベ工事中(2026年3月完成予定)
ラ・鷺ノ宮 109号室 4LDK 83.35㎡・6,890万円
西武新宿線「下井草」駅徒歩8分
✅ ご安心ください。この物件の仲介手数料が無料になる理由とメリット
通常の不動産会社で購入した場合 (概算):
仲介手数料 (最大額/税込):
約 233 万円
(物件価格 6,890 万円の場合の計算式に基づく)
(6,890万円×3%+6万円+消費税)
リアルエステートコクーンで購入した場合:
仲介手数料 (税込):
0 円
💡 お客様のメリット: 約 233 万円 の節約になります!
浮いた費用は、最新家電、引っ越し費用、リノベオプションなどに使えます!
◆新耐震基準 ◆オートロック ◆エレベーター ◆外壁タイル ◆宅配BOX ◆ペット飼育可 ◆駅徒歩10分以内 ◆フラット35S適合
◇リノベーション ◇角住戸 ◇追い焚き機能 ◇浴室乾燥機 ◇2面テラス
- 物件概要
- その他情報
- リノベーション内容
- ローンシュミレーター
| 物件名 | ラ・鷺ノ宮 109号室 |
| 所在地(住居表示) | 中野区鷺宮6-28-9 |
| 交通 | 西武新宿線「下井草」駅徒歩8分 |
| 構造・規模 | RC造4階建1階部分 |
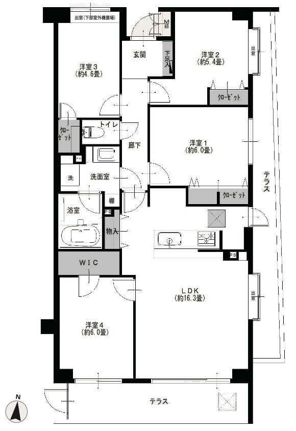
| 間取り | 4LDK |
| 物件価格 | 6890万円(税込) |
| 専有面積 | 83.35㎡(壁心) |
| バルコニー面積 | 20.54㎡ |
| 室外機置場面積 | 0.83㎡ |
| ㎡単価 | 82.6万円 |
| 坪単価 | 273.2万円 |
| 築年月 | 平成13年(2001年)8月 |
| 総戸数 | 54戸 |
| 土地権利 | 所有権 |
| 管理費 | 14,300円(月額) |
| 修繕積立金 | 17,700円(月額) |
| 町内会費 | 100円(月額) |
| 小学校学区 | 武蔵台小学校 |
| 中学校学区 | 北中野中学校 |
| 現況 | 空室 |
| 引渡 | 相談 |
| 分譲会社 | ㈱スペースデザイン |
| 施工会社 | ㈱竹中工務店 |
| 管理会社 | 大和ライフネクスト㈱ |
| 管理形態 | 全部委託・日勤 |
| 事務所利用 | 不可 |
| ペット飼育 | 可(規約あり) |
| 民泊 | 不可 |
| 駐車場 | 17,000〜22,000円/月額(空き要確認) |
| 駐輪場 | 300円/月額(空き要確認) |
| バイク置場 | なし |
| トランクルーム | なし |
| インターネット | NTT |
| 共用部分修繕履歴 | 2021年6月〜7月 鉄部塗装工事 2017年10月 ガス警報器一斉交換 2015年2月〜3月 増圧直結給水方式変更工事 など |
| その他 | |
| 取引形態 | 媒介(買主様の仲介手数料無料) |
| 物件番号 | MS639 |
| 登録日 | 2026.1.8 |
| システムキッチン交換 |
| ユニットバス交換(浴室換気乾燥機) |
| 洗面化粧台交換 |
| トイレ交換 |
| 建具交換 |
| クロス張替え |
| フローリング張替え |
| 給湯器交換(追い焚き機能) |
| シューズボックス交換 |
| 洗濯防水パン交換 |
| 洗濯水栓金具交換 |
| 照明器具交換 |
| スイッチパネル設置 |
| クッションフロア張替え |
| 玄関人感センサー設置 |
| ルームクリーニング など |
借入金額・融資金利・返済期間(月数)を入力して、「計算する」をクリックしてください。
(変動金利・元利均等償還で計算)
📌 おすすめPOINT!
【83㎡超×4LDK】開放感あふれる2面テラス付の角住戸。ゆとりある家族時間を。
西武新宿線「下井草」駅より徒歩8分の閑静な住宅街。中野区鷺宮に佇む、気品ある外壁タイル貼りの低層レジデンスです。
一番の魅力は、専有面積83.35㎡、4LDKというゆとりの広さ。1階角住戸の特権として、合計20.54㎡もの広大な2面テラスを備えており、ガーデニングや趣味のスペースとして「戸建て感覚」の暮らしを楽しめます。
2001年築の新耐震基準物件で、オートロック、宅配ボックス、浴室乾燥機など設備も充実。フラット35適合物件のため、資金計画も安心です。Real Estate Cocoonでは、仲介手数料無料でご紹介。大切なペットと一緒に、一歩先を行くゆとりある新生活を始めませんか。
- MAP
- LIFE INFORMATION
| 小学校 | 武蔵台小学校:約400m |
| 中学校 | 北中野中学校:約280m |
| 保育園 | こどもヶ丘保育園:約450m |
| 幼稚園 | ひこばえ幼稚園:約650m |
| 病院 | 奥村医院:約450m |
| 郵便局 | 中野鷺宮五郵便局:約550m |
| 公共施設 | 鷺六公園:約150m |
| コンビニ | セブンイレブン中野鷺宮6丁目店:約190m |
| スーパー | 三徳下井草店:約550m |
| ドラッグストア | ツルハドラッグ下井草駅前店:約600m |
【ラ・鷺ノ宮 109号室】についてのお問い合わせ
迅速に対応いたします。お気軽にお問い合わせください。

①お問い合わせ
電話・メール・LINEどれでもお好きな方法でお問い合わせください。

②ご内見
現地をご案内させていただきます。ご質問などにもお答えします。

③購入お申し込み
住宅ローンご利用の場合には、前後して事前審査をさせていただきます。

④ご契約
ご契約後約1ヶ月でお引渡しできるようにお手続きさせていただきます。

*ラ・鷺ノ宮 6,890万円(4LDK・83.35㎡)の物件情報はいかがでしたか?最新の販売情報や気になるポイントは資料請求や質問、実際の内見でお確かめください。ラ・鷺ノ宮 6,890万円(4LDK・83.35㎡)のお問い合わせをお待ちしています!

東京23区内は、物件数が豊富で当サイトに掲載しきれていません。
当サイトに未掲載の物件であっても、仲介手数料無料になる物件が多数ございます。
気になる物件がございましたら、お気軽にお問い合わせください。
掲載情報と現況が異なる場合は現況が優先となります。

