【仲介手数料無料】リノベ工事中(2026年3月完成予定)
東京ビューマークス 303号室 3LDK 76.04㎡・9980万円
東京メトロ日比谷線「入谷」駅徒歩7分
✅ ご安心ください。この物件の仲介手数料が無料になる理由とメリット
通常の不動産会社で購入した場合 (概算):
仲介手数料 (最大額/税込):
約 335 万円
(物件価格 9980 万円の場合の計算式に基づく)
(9980万円×3%+6万円+消費税)
リアルエステートコクーンで購入した場合:
仲介手数料 (税込):
0 円
💡 お客様のメリット: 約 335 万円 の節約になります!
浮いた費用は、最新家電、引っ越し費用、リノベオプションなどに使えます!
◆新耐震基準 ◆ビッグコミュニティ ◆オートロック ◆エレベーター ◆外壁タイル ◆宅配BOX ◆ペット飼育可 ◆駅徒歩10分以内
◇リノベーション ◇追い焚き機能 ◇浴室乾燥機 ◇食器洗浄機 ◇南向きバルコニー ◇トランクルーム
- 物件概要
- その他情報
- リノベーション内容
- ローンシュミレーター
| 物件名 | 東京ビューマークス 303号室 |
| 所在地(住居表示) | 台東区竜泉2-7-7 |
| 交通 | 東京メトロ日比谷線「入谷」駅徒歩7分 |
| 構造・規模 | SRC造20階建3階部分 |
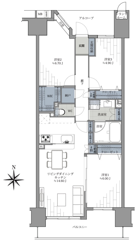
| 間取り | 3LDK |
| 物件価格 | 9980万円(税込) |
| 専有面積 | 76.04㎡(壁心) |
| バルコニー面積 | 9.97㎡ |
| アルコーブ面積 | 6.01㎡ |
| ㎡単価 | 131.2万円 |
| 坪単価 | 433.8万円 |
| 築年月 | 平成15年(2003年)2月 |
| 総戸数 | 258戸 |
| 土地権利 | 所有権 |
| 管理費 | 10,810円(月額) |
| 修繕積立金 | 18,720円(月額) |
| その他費用 | 720円(月額) |
| 小学校学区 | 金曽木小学校 |
| 中学校学区 | 柏葉中学校 |
| 現況 | 空室 |
| 引渡 | 相談 |
| 分譲会社 | 東レ建設㈱他 |
| 施工会社 | ㈱長谷工コーポレーション |
| 管理会社 | ㈱長谷工コミュニティ |
| 管理形態 | 全部委託・日勤 |
| 事務所利用 | 不可 |
| ペット飼育 | 可(規約あり) |
| 民泊 | 不可 |
| 駐車場 | 28,000〜35,000円/月額(空き要確認) |
| 駐輪場 | 200円/月額(空き要確認) |
| バイク置場 | 2,000円/月額(空き要確認) |
| トランクルーム | なし |
| インターネット | NTT |
| 共用部分修繕履歴 | 2018年 大規模修繕工事 |
| その他費用内訳/月額 | 電波障害積立金420円・町内会費300円 |
| 取引形態 | 媒介(買主様の仲介手数料無料) |
| 物件番号 | MS629 |
| 登録日 | 2025.12.25 |
| システムキッチン交換(食器洗浄機) |
| ユニットバス交換(浴室換気乾燥機) |
| 洗面化粧台交換 |
| トイレ交換 |
| 建具交換 |
| クロス張替え |
| フローリング張替え |
| 給湯器交換(追い焚き機能) |
| シューズボックス交換 |
| 洗濯防水パン交換 |
| 洗濯水栓金具交換 |
| 照明器具交換 |
| ルームクリーニング など |
| (2026年3月リノベーション工事完了) |
借入金額・融資金利・返済期間(月数)を入力して、「計算する」をクリックしてください。
(変動金利・元利均等償還で計算)
📌 おすすめPOINT!
【東京ビューマークス303号室】9,980万円 | 入谷・三ノ輪駅徒歩7分 | 76㎡超・南向き・ペット可のビッグコミュニティ
「東京ビューマークス」は、東京メトロ日比谷線「入谷」駅・「三ノ輪」駅からともに徒歩7分。上野や銀座へダイレクトにアクセスできる利便性と、台東区ならではの情緒が融合したエリアに佇む総戸数259戸の大規模レジデンスです。
■最大の推しポイント:南向き×76㎡超の開放的な住空間 本住戸は、専有面積76.04㎡のゆとりある3LDK。南向きのメインバルコニーに加え、約6.01㎡のサービスバルコニーも備えており、採光・通風ともに良好です。また、専有部にはトランクルームが付帯しており、キャンプ用品や季節ものなど、かさばる荷物もスッキリ収納できるのが大きな魅力です。
■大規模修繕済み!安心の管理体制 2003年築の新耐震基準適合物件で、2018年には大規模修繕工事を実施済み。外壁は重厚感のあるタイル貼りで、管理の行き届いたビッグコミュニティならではの安心感があります。 共用部にはオートロック、エレベーター、不在時に重宝する宅配ボックスをしっかり完備しています。
■快適な設備とペットとの暮らし 室内には、家事の時短を叶える食洗機、雨の日の洗濯に便利な浴室乾燥機、いつでも温かいお風呂に入れる追い焚き機能が揃っています。さらに、大切な家族であるペットとの共生も可能(細則あり)なため、都心での豊かな暮らしが実現します。
広さ、日当たり、収納力、そして安心の管理体制。すべてを妥協したくないファミリーに、ぜひおすすめしたい一台です。
Real Estate Cocoonでは仲介手数料無料でご紹介しています
- MAP
- LIFE INFORMATION
| 小学校 | 金曽木小学校:約500m |
| 中学校 | 柏葉中学校:約400m |
| 保育園 | 坂本保育園:約250m |
| 幼稚園 | :約m |
| 病院 | 区立台東病院:約750m |
| 郵便局 | 下谷三郵便局:約290m |
| 公共施設 | 竜泉こどもクラブ:約100m |
| コンビニ | セブンイレブン台東下谷3丁目店:約260m |
| スーパー | まいばすけっと竜泉1丁目店:約170m |
| ドラッグストア | ウェルパーク東日暮里1丁目店:約350m |
【東京ビューマークス 303号室】についてのお問い合わせ
迅速に対応いたします。お気軽にお問い合わせください。

①お問い合わせ
電話・メール・LINEどれでもお好きな方法でお問い合わせください。

②ご内見
現地をご案内させていただきます。ご質問などにもお答えします。

③購入お申し込み
住宅ローンご利用の場合には、前後して事前審査をさせていただきます。

④ご契約
ご契約後約1ヶ月でお引渡しできるようにお手続きさせていただきます。

*東京ビューマークス 9980万円(3LDK・76.04㎡)の物件情報はいかがでしたか?最新の販売情報や気になるポイントは資料請求や質問、実際の内見でお確かめください。東京ビューマークス 9980万円(3LDK・76.04㎡)のお問い合わせをお待ちしています!

東京23区内は、物件数が豊富で当サイトに掲載しきれていません。
当サイトに未掲載の物件であっても、仲介手数料無料になる物件が多数ございます。
気になる物件がございましたら、お気軽にお問い合わせください。
掲載情報と現況が異なる場合は現況が優先となります。

