【仲介手数料無料】
グランドメゾン上池袋 203号室|3LDK・84.00㎡|8990万円
東武東上線「北池袋」駅徒歩8分
CHECK POINT
◆新耐震基準 ◆オートロック ◆エレベーター ◆外壁タイル ◆宅配BOX ◆ペット飼育可 ◆駅徒歩10分以内 ◆複数路線利用可 ◆フラット35S適合 ◆住宅ローン控除適合
◇リノベーション ◇角住戸 ◇ルーフバルコニー ◇追い焚き機能 ◇浴室乾燥機 ◇食器洗浄機 ◇インナーサッシ
- 物件概要
- リノベーション内容
- その他物件情報
- ローンシュミレーター
| 物件名 | グランドメゾン上池袋 203号室 |
| 所在地(住居表示) | 豊島区上池袋4-9-8 |
| 交通 | 東武東上線「北池袋」駅徒歩8分 |
| 構造・規模 | SRC・RC造13階建2階部分 |
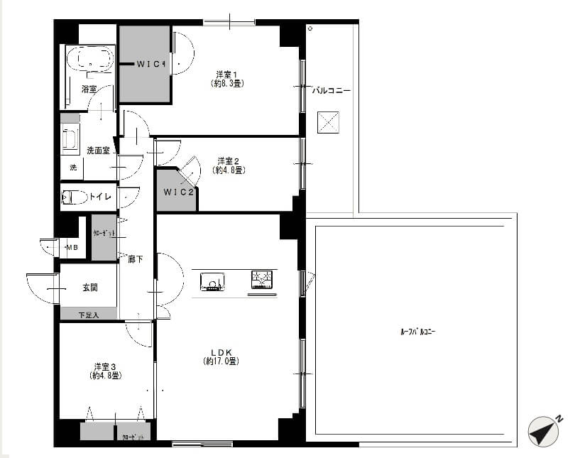
| 間取り | 3LDK |
| 物件価格 | 8990万円(税込) |
| 単価 | ㎡:107万円・坪:353.7万円 |
| 専有面積 | 84.00㎡(壁心) |
| バルコニー面積 | 18.00㎡ |
| 築年月 | 平成3年(1991年)11月 |
| 総戸数 | 52戸 |
| 土地権利 | 所有権 |
| 管理費 | 21,300円(月額) |
| 修繕積立金 | 10,750円(月額) |
| 学区 | 池袋第一小学校・池袋中学校 |
| 現況 | 空室 |
| 引渡 | 相談 |
| 分譲会社 | 積水ハウス㈱ |
| 施工会社 | 住友建設㈱ |
| 管理会社 | ㈱大京アステージ |
| 管理形態 | 全部委託・通勤 |
| 取引形態 | 媒介(買主様の仲介手数料無料) |
| 物件番号 | MS463 |
| 登録日 | 2025.9.18 |
| システムキッチン交換(食器洗浄機) |
| ユニットバス交換(浴室換気乾燥機) |
| 洗面化粧台交換 |
| トイレ交換 |
| 建具交換 |
| クロス張替え |
| フローリング張替え |
| 給湯器交換(追い焚き機能) |
| シューズボックス交換 |
| 洗濯防水パン交換 |
| 洗濯水栓金具交換 |
| 照明器具交換 |
| フロアタイル張替え |
| スイッチパネル設置 |
| 玄関人感センサー設置 |
| ルームクリーニング など |
| 事務所利用 | 不可 |
| ペット飼育 | 可(規約あり) |
| 民泊 | 不可 |
| 駐車場 | なし(分譲区画あり) |
| 駐輪場 | 200〜300円/月額(空き要確認) |
| バイク置場 | 24,000円/年額(空き要確認) |
| トランクルーム | なし |
| インターネット | NTT |
| 共用部分修繕履歴 | 令和3年7月 大規模修繕工事 |
| その他 |
借入金額・融資金利・返済期間(月数)を入力して、「計算する」をクリックしてください。
(変動金利・元利均等償還で計算)
- MAP
- LIFE INFORMATION
| 小学校 | 池袋第一小学校:約500m |
| 中学校 | 池袋中学校:約900m |
| 保育園 | 池袋第一保育園:約300m |
| 幼稚園 | 西巣鴨幼稚園:約650m |
| 病院 | 豊島中央病院:約500m |
| 郵便局 | 西巣鴨一郵便局:約200m |
| 公共施設 | 北区立南谷端公園:約350m |
| コンビニ | セブンイレブン豊島上池袋1丁目店:約120m |
| スーパー | ビッグ・エー豊島上池袋店:約240m |
| ドラッグストア | くすりの福太郎上池袋店:当マンション1階 |
【グランドメゾン上池袋 203号室】についてのお問い合わせ
迅速に対応いたします。お気軽にお問い合わせください。
048-797-7879 9:00〜20:00(水定休)
お部屋ご購入までのおおまかな流れ

①お問い合わせ
電話・メール・LINEどれでもお好きな方法でお問い合わせください。

②ご内見
現地をご案内させていただきます。ご質問などにもお答えします。

③購入お申し込み
住宅ローンご利用の場合には、前後して事前審査をさせていただきます。

④ご契約
ご契約後約1ヶ月でお引渡しできるようにお手続きさせていただきます。

